Es ist endlich so weit: Unsere Teilnahme an der didacta 2022-06-06T22:00:00Z→2022-06-10T22:00:00Z in Köln steht fest! In diesem Wiki-Post sammeln wir alle organisatorischen Informationen.
Stand
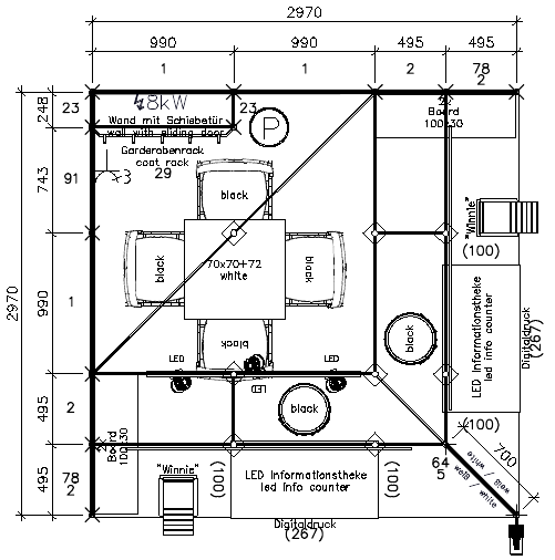
Eckstand, Halle 6, Themenwelt “Schule (digital)”, Fläche E122, 9m²
Den Grundaufbau unseres Messestandes lassen wir von der Koelnmesse durchführen. Das Messetand-Modell “Oslo” auf der Ecke hat:
- Zwei Wände
- Zwei offene Seiten
- Zwei Firmenschilder über den offenen Seiten
- Teppich
- Beleuchtung / Strahler
- Info-Stele an der Ecke
- Stromanschluss
Die Firmenschilder lassen wir einfach dreist mit “Freie Software / Open Source” beschriften – das ist neutral und hochtrabend, dass wir die gesamte Szene repräsentieren. Aber so ist es auf der didacta ja offenbar auch.
Als Farben habe ich ein grasgrün für den Teppich und ein neutrales, frei gestaltbares weiß für die Stele gewählt sowie einige Zusatzoptionen..
Hinweis: Der Stehtisch aus der 3D-Ansicht gehört nicht mehr zum Stand.
Außerdem bringen wir folgende Ausstattung mit:
- Großer, heller Monitor für Präsentation (@nik)
- Weiterer Monitor (Teckids)
- Laptops für Betrieb von Monitoren (Teckids)
Info-Theken
Die Infotheken sind individuell bedruckt und von innen beleuchtet.
Info-Stele
Die Info-Stele ist der Hingucker unseres Standes und soll aus vier Teilen bestehen:
- Weit sichtbare Überschrift
- Logos der empfohlenen (Software-)Projekte
- 5 Thesen über freie Software
- Projekt- und Sponsoren-Logos
Kostenrechnung
| Kostenpunkt | Bestandteile | Betrag (netto) |
|---|---|---|
| Standmiete | 9m² Ecktand, Energiekosten, AUMA-Gebuehr, Nebenkosten, Marketing-Paket, Werbekostenzuschlag | 1850,00 € |
| Messebau / Standbau | Messestand Oslo wie oben beschrieben | 2200,00€ |
| Werbematerial | Flyer, Giveaways, usw. | 500,00 € |
| Shirts | 300,00 € | |
| Gesamt | 4650,00 € |
Sponsoren / Finanzierer
| Finanzierungspartner | Betrag |
|---|---|
| Katharineum (ueber Stiftung) | 1300,00 € |
| cyber4EDU e.V. | 650,00 € |
| Digitalcourage e.V. | 200,00 € |
| Teckids e.V. (ggf. ueber Sponsoren) | 2750,00 € |
Produkte / Marken
Die folgenden Produkte und Marken werden wir ausstellen (geordnet nach Priorität/Sichtbarkeit) und im Marketing-Paket aufführen lassen:
- AlekSIS®
- Debian Edu
- schul-frei (als Themenkanon Freie Software in der Bildung)
- cyber4EDU e.V., Teckids e.V.
- Digitalcourage-Bildungspaket
Werbematerial auf Prospektständern
- Postkarten, 3 Varianten, jeweils mit
- Vorderseite: einfarbig (3 verscheidene Farben), Catch-Phrase/Slogan, Icon o.ä.
- Rückseite: klein Projektpartner- und Sponsoren-Logos, QR-Code zur Landing-Page
- Ansichtsexemplare verschiedener (Software-)Projekte
- AlekSIS-Handbuch
- Debian-Edu-Handbuch
- Digitalcourage-Bildungspaket
- Ada & Zangemann (Sponsoring Linuxhotel)
- Flyer/Giveaways der Sponsoren
Digitaler Messestand
Wir bauen eine Landing-Page unter https://didacta22.schul-frei.dev auf. Auf dieser wollen wir alle detailierteren Inhalte sammeln und dafúr auf einzelne (Projekt)flyer verzichten.
- Infos zu freier Software insgesamt
- Liste und kurze Beschreibungen empfohlener Anwendungen
- Links zu Anbietern für Beratung, Support, Hosting, etc.
- Teckids
- cyber4EDU
- Sponsoren-Links
Bekleidung
- Polo-Shirts (2 pro Person)
- grün oder weiß?
- Schriftzug “Schule richtig digitalisieren – mit freier Software und Open Source”
Organisation Aufbau
Anlieferung Material
- Flyer und anderes Material per Post direkt zur Messe
- Monitor von @nik per Auto aus Mönchengladbach
- Weitere Hardware per Auto von @mwinter
- 3 weitere Monitore
- Mehrfachsteckdosen
- Netzwerk-Hardware
- 3 Laptops
Aufbau vor Ort
Der Standbau wird 24 Stunden vor Messebeginn fertig. WIr können also den Montag (6. Juni) zur Vorbereitung nutzen.
Zuständigkeiten
| Aufgabe | Zuständig |
|---|---|
| Aufbau Monitore, Laptops, etc. neben Info-Theken | @benni @mwinter |
| Aufbau Server, Netzwerk, WLAN | @tteichler @nik |
| Beklebung Info-Stele | @tteichler @benni |
| Bestückung Flyer-Ständer | @nik |
Aufbau Monitore, etc. neben Info-Theken
Neben jeder der Info-Theken befindet sich seitens des Messe-Baus eine Wand mit zwei Regalbrettern. Darauf werden aufgebaut:
- oben Monitor
- unten Laptop
- Stromverkabelung – bitte ordentlich machen, Kabel an Rändern verlegen und abkleben
Aufbau Server, Netzwerk, WLAN
Wir zeigen eine AlekSIS-Demo-Instanz und den digitalen Messestand lokal. Ob wir funktionierenden Internetzugang haben, wissen wir noch nicht.
Die Laptops an den Info-Theken verbinden sich per WLAN.
Beklebung Info-Stele
Für die Info-Stele gibt es vier Folien – je zwei identische für das obere Panel und die Stele selbst. Die Folien sind selbsthaftend und wiederablösbar und müssen sauber aufgetragen werden, z.B. mit einer Malerrolle.
Im Idealfall haben wir ab Montagnachmittag eine Teleskopleiter hierfür.
Bestückung Flyer-Ständer
TBD
Standdienst
Der Standdienst wird in Schichten eingeteilt, die jeweils mit einem Ausstellungs-Leiter und ein bis zwei weiteren Personen besetzt sein sollen.
| Dienstag | Mittwoch | Donnerstag | Freitag | Samstag | |
|---|---|---|---|---|---|
| 9:00 - 10:30 | @nik + @fph | @nik + @k1r1ll | @nik + @magicfelix | @benni + @k1r1ll | @nik + |
| 10:30 - 12:00 | @nik + @fph | @nik + @k1r1ll | @nik + @magicfelix | @benni + @k1r1ll | @nik + |
| 12:00 - 13:30 | @benni + @magicfelix | @k1r1ll + @fph | @benni + @fph | @k1r1ll + @robert | @benni + @k1r1ll |
| 13:30 - 15:00 | @benni + @magicfelix | @k1r1ll + @fph | @benni + @fph | @k1r1ll + @robert | @benni + @k1r1ll |
| 15:00 - 16:30 | @tteichler + @k1r1ll | @nik + @magicfelix | @benni l + @magicfelix | @nik + @robert | @k1r1ll + @benni |
| 16:30 - 18:00 | @tteichler + @k1r1ll | @nik + @magicfelix | @benni + @magicfelix | @nik + | @k1r1ll + @benni |
Die Belegungen nach dem + dürfen beliebig getauscht werden. Die Belegungen vor dem + nicht ohne Rücksprache tauschen!


